売買物件

西野11条9丁目 戸建

  • 駐車場2台可
  • 角地
  • バス停4分
  • 庭付き
外観
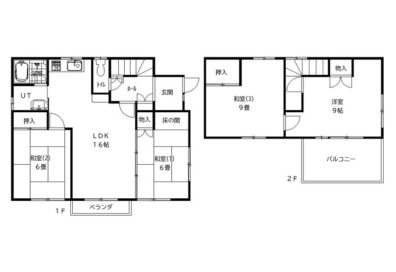
間取図
外観 間取図
種目

売一戸建

物件名

西野11条9丁目 戸建

所在地

札幌市西区西野11条9丁目18-1

交通

地下鉄東西線「宮の沢」駅 バス乗車15分
「西野第二」停 徒歩4分

価格

1,380万円

間取り

4LDK

構造規模

木造2階建て

建築年月

1987年8月

カースペース

ガレージ2台可

建ぺい率

50%

容積率

80%

土地面積

186.62㎡

延床面積

104.49㎡

備考

1階68.85㎡ 2階35.64㎡

通学区

西野第二小学校 徒歩14分 
西野中学校 徒歩13分

現況

空室

引渡日

即日

地目

宅地

土地権利

所有権

都市計画

市街化区域

用途地域

第一種低層

取引態様

仲介 ※規定の仲介手数料がかかります。

周辺地図

札幌市西区西野11条9丁目18-1

Googleルート